Modern 3-Bed Near the Beach with Terrace & Pool
Experience the privilege of living close to the sea in a home that blends elegance, comfort and a true Mediterranean lifestyle. This modern 3-bedroom, 2-bathroom apartment is located on the third floor of an exclusive residential development designed by MIAS Architects, just a short walk from the beaches of Cubelles.
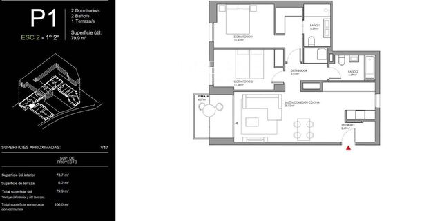
With 88.70 m² of interior space and a private 10.52 m² terrace, every corner has been thoughtfully optimized to provide brightness and a sense of spaciousness throughout the day. The open-plan living-dining room connects seamlessly with a contemporary kitchen, creating the perfect space to relax or enjoy time with family and friends. The master bedroom with en-suite bathroom offers privacy and comfort, while the two additional bedrooms adapt easily to your needs: home office, guest room or children's room.
The development enhances your wellbeing with outdoor swimming pool, solarium, fully equipped gym, spa and children's play area surrounded by landscaped gardens — a true oasis where every day feels like a holiday.
The building holds BREEAM certification, ensuring a sustainable, energy-efficient and comfortable home that provides long-term environmental and economic benefits.
Living in Cubelles means peace, beach life and quality living, while remaining perfectly connected to Barcelona and Tarragona. All essential services — shops, schools, restaurants — are within easy reach, with the sea just a short stroll away.
A fantastic opportunity for those seeking design, comfort and a seaside lifestyle in one of the most promising coastal locations.
Price: €550,000
Would you like to visit? We'd be delighted to show it to you.
Property features
-
A (92-100)
-
B (81-91)
-
C (69-80)
-
D (55-68)
-
E (39-54)
-
F (21-38)
-
G (1-20)









