Apartament de 2 Habitacions amb Terrassa de 36 m² en una Residència Exclusiva a Cubelles
Descobreix aquest magnífic apartament de dues habitacions, situat a la planta baixa d'una residència nova en construcció, dissenyada pel reconegut despatx d'arquitectura MIAS Arquitectos. A pocs passos de les platges daurades de Cubelles, aquest projecte immobiliari ofereix un marc de vida excepcional, pensat per combinar elegància contemporània, benestar diari i qualitat de vida a la Mediterrània.
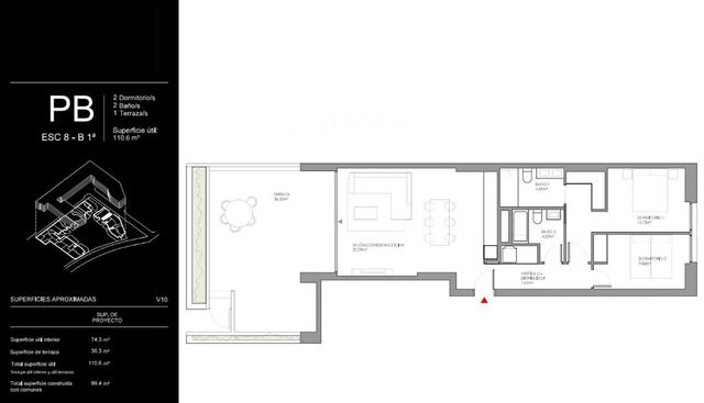
Des de l'entrada, quedaràs seduït per la distribució fluida i funcional de l'apartament. L'espai de vida principal s'obre directament a una cuina moderna i oberta, perfectament integrada al saló. Aquesta disposició afavoreix la convivialitat i crea una atmosfera càlida, ideal per compartir moments amb família o amics. Grans finestrals banyen l'espai de llum natural i prolonguen harmònicament l'espai cap a l'exterior, on t'espera una àmplia terrassa de 36 m². Autèntica extensió del saló, aquest espai exterior et permetrà gaudir plenament del clima suau de la regió: esmorzar al sol, aperitius a la tarda o moments de relaxació tranquil·la… tot ha estat pensat per optimitzar el teu confort.
La suite principal gaudeix d'una disposició privilegiada amb el seu propi bany contigu, oferint intimitat i funcionalitat. La segona habitació, espaiosa i lluminosa, disposa d'un bany independent, garantint una distribució flexible i adaptada a diferents estils de vida: habitació d'amics, habitació infantil o despatx segons les teves necessitats. Cada espai ha estat dissenyat amb cura per oferir el màxim confort, lluminositat i practicitat.
Els materials triats, els acabats cuidats i els volums generosos testimonien una atenció constant al detall i la voluntat d'oferir un habitatge estètic, funcional i agradable per viure-hi.
Els futurs residents tindran accés a nombrosos serveis d'alta gamma, com una gran piscina comunitària envoltada de jardins, un solàrium per gaudir del sol, una zona de jocs segura per a nens, un spa per recuperar energies i un gimnàs completament equipat per mantenir-se en forma diàriament. Aquestes instal·lacions, pensades per a totes les generacions, creen un entorn serè, propici per a les relacions, la convivència i la relaxació.
Compromesa amb una construcció responsable, la residència està certificada BREEAM, una de les etiquetes més reconegudes internacionalment en desenvolupament sostenible. Aquesta certificació garanteix alts estàndards de qualitat constructiva, un consum energètic optimitzat, un impacte ambiental reduït i un confort màxim per als habitants durant tot l'any. Triar aquest apartament significa apostar per un estil de vida més respectuós amb el medi ambient, sense renunciar a l'estil ni al confort.
Situat idealment a Cubelles, entre Barcelona i Tarragona, el projecte gaudeix d'una ubicació privilegiada: un entorn tranquil i verd, a pocs passos del mar, amb accés fàcil a totes les comoditats. Trobaràs a prop comerços, escoles, restaurants, centres mèdics i infraestructures de transport. L'estació de tren de Cubelles permet arribar al centre de Barcelona en menys d'una hora, un gran avantatge per a professionals que volen gaudir d'un entorn tranquil però connectats a la vida urbana.
Siguis a la recerca d'una residència principal per al dia a dia, un lloc còmode per a les vacances, o una inversió en lloguer rendible i sostenible, aquest apartament destaca per la qualitat de la seva arquitectura, la seva ubicació estratègica, les prestacions d'alta gamma i el seu enfocament sostenible.
No perdis aquesta oportunitat única de viure o invertir en un lloc pensat pel teu benestar, en un dels entorns naturals més bonics de la costa catalana.
Contacta'ns ara per organitzar una visita o obtenir més informació sobre aquesta propietat d'excepció.
El preu de l'immoble no inclou impostos, despeses notarials i registrals, honoraris d'agència ni despeses de gestió hipotecària (si escau).
Característiques de la propietat
-
A (92-100)
-
B (81-91)
-
C (69-80)
-
D (55-68)
-
E (39-54)
-
F (21-38)
-
G (1-20)









