Elegante piso de los años 30 en el Quadrat d'Or de Barcelona – Rehabilitado con confort moderno
Ubicada en pleno Eixample Dreta de Barcelona, dentro del prestigioso Quadrat d'Or, esta excepcional propiedad forma parte de un edificio residencial histórico protegido que data de la década de 1930, una etapa de gran expansión urbana en la que el Eixample se consolidó como el centro moderno y elegante de la ciudad.
El edificio conserva las proporciones clásicas y la elegancia arquitectónica propias del Eixample, con una fachada señorial con balcones de hierro forjado, techos altos y una composición simétrica que potencia la luminosidad y la amplitud de los espacios. Su doble orientación, con vistas a la calle Pau Claris y al tranquilo patio de manzana, garantiza luz natural durante todo el día, combinando dinamismo urbano y calma.
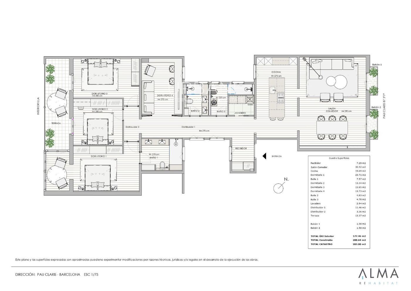
La vivienda, con 203 m², ha sido completamente rehabilitada con gran cuidado, respetando y recuperando elementos arquitectónicos originales que realzan su valor histórico, e integrando a la vez el confort y el diseño contemporáneos. El resultado es una fusión equilibrada entre encanto clásico y vida moderna.
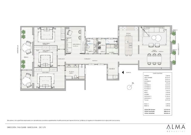
La distribución es muy funcional, con una clara separación entre la zona de día y la zona de noche. Al acceder a la vivienda, un amplio recibidor con armarios a medida y techos elevados anticipa la elegancia y luminosidad del conjunto.
La zona de día ofrece un espacioso salón-comedor lleno de luz natural, conectado a una cocina abierta completamente equipada con isla-barra. Los grandes ventanales de ambos espacios crean un ambiente cálido y acogedor. Esta zona se completa con un práctico lavadero y un baño completo de cortesía.
La zona de noche dispone de cuatro habitaciones dobles y dos baños completos, uno de ellos en suite. La suite principal destaca por su encantadora galería soleada, ideal para disfrutar de momentos de descanso y tranquilidad.
La reforma integral se distingue por el uso de materiales y acabados de alta calidad. Se ha prestado especial atención a la carpintería interior y exterior, toda nueva y realizada en madera noble, que aporta calidez y valor añadido. Las carpinterías exteriores conservan los diseños originales e incorporan vidrios bajo emisivos y cámaras aislantes para un excelente confort térmico y acústico. Las interiores incluyen puertas abatibles y correderas, armarios a medida, mobiliario de baño diseñado a medida e iluminación LED integrada.
Los techos ornamentados, las molduras decorativas, los acabados murales cuidadosamente coordinados y los pavimentos seleccionados —parquet o baldosas cerámicas— completan un conjunto armónico y elegante.
Una oportunidad única para vivir en una de las zonas más codiciadas de Barcelona, una propiedad que no solo ofrece un hogar excepcional, sino también una inversión segura en el estilo de vida más exclusivo de la ciudad, donde historia, elegancia y confort contemporáneo conviven en perfecta armonía.
Características de la propiedad
-
A (92-100)
-
B (81-91)
-
C (69-80)
-
D (55-68)
-
E (39-54)
-
F (21-38)
-
G (1-20)









